!!Exklusivität Pur!! Traumhafter Bungalow in Bestlage von Dörpen
Beschreibung:
Sie suchen etwas ganz besonderes?-Wir haben es !!!!!Lassen Sie sich dieses Traumobjekt nicht entgehen!!!!
Nur sehr selten können wir Ihnen so eine Exklusive Liegenschaft anbieten
Vereinbaren Sie direkt einen Besichtigungstermin mit mir.
In Bestlage von Dörpen befindet sich diese Liegenschaft der Extraklasse.
Hohe Exklusivität findet man hier im gesamten Objekt.
Schon beim betreten dieses Hauses werden Sie begeistert sein von der großen offenen Eingangsdiele mit der hochwertigen Marmortreppe und offener Galerie im Obergeschoss. Das große Wohn/Esszimmer mit den großen lichtdurchfluteten Fenster Elementen lässt absolut keine Wünsche offen.
Die Designer Küche mit hochwertigen Geräten wird Sie begeistern.
Das Objekt ist aufgrund seiner Schlafzimmer und angrenzendem Badezimmer im Erdgeschoss ebenerdig bewohnbar.
Ein Büro im Erdgeschoss eignet sich bestens für Home-Office arbeiten.
Im Obergeschoss finden Sie wiederum ein hochexklusives Bad sowie mehreren Schlafzimmer mit Ankleiden.
Eine große Doppelgarage mit ausgebauten Obergeschoss wo sich auch die Heizungsanlage befindet bietet viel Platz für Ihren Fuhrpark.
Der angrenzende Nebenraum biete viel Platz für Gartengeräte ect.
Lagebeschreibung:
In Bestlage von Dörpen in einem gewachsenen Wohngebiet strahlt dieser Luxusbungalow hervor.Alle täglichen Versorgungen sind fußläufig erreichbar.
Ein Bahnanschluss wertet den Ort Dörpen nochmals auf.
Dörpen ist eine Gemeinde und zugleich Verwaltungssitz der Samtgemeinde Dörpen im Landkreis Emsland in Niedersachsen.
Lage
Die Gemeinde Dörpen liegt im südöstlichen Dreieck des Küstenkanals und der Ems. Die Kreisstadt Meppen liegt etwa 30 Kilometer südlich, und die Stadt Papenburg befindet sich etwa 14 Kilometer nördlich von Dörpen.
Nachbargemeinden
Nachbargemeinden sind im Norden die Gemeinden Heede, Lehe und Neulehe, im Osten die Gemeinden Surwold in der Samtgemeinde Nordhümmling und die Gemeinde Neubörger, im Süden die Gemeinden Wippingen und Kluse sowie im Westen die Gemeinden Walchum und Dersum
Ausstattung:
Energieausweis:
- A+
- A
- B
- C
- D
- E
- F
- G
- H
- Baujahr:
- 2008
- Endenergieverbrauch:
- 56,23 kWh/(m²a)
- Energieausweis:
- Verbrauchsausweis
- Energieeffizienzklasse:
- B
- Energieausweis gültig bis:
- 24.11.2032
- wesentlicher Energieträger:
- Gas
- Baujahr lt. Energieausweis:
- 2008
Ausstattungsbeschreibung:
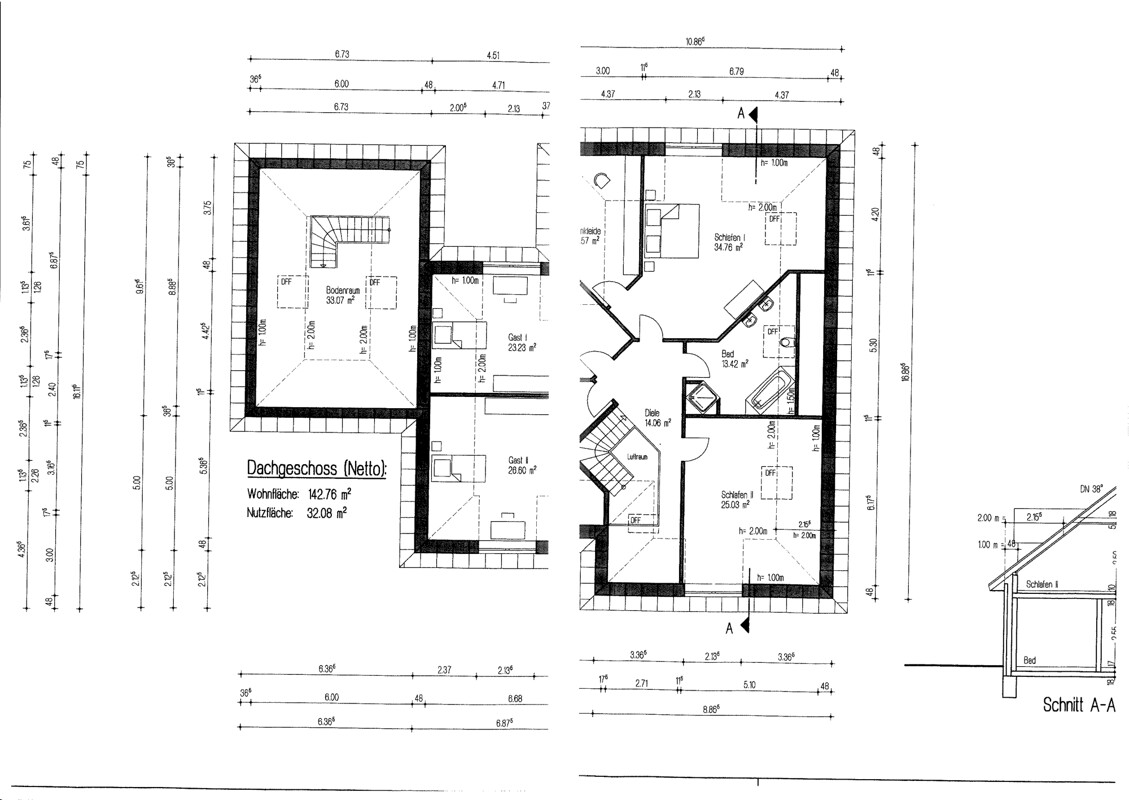
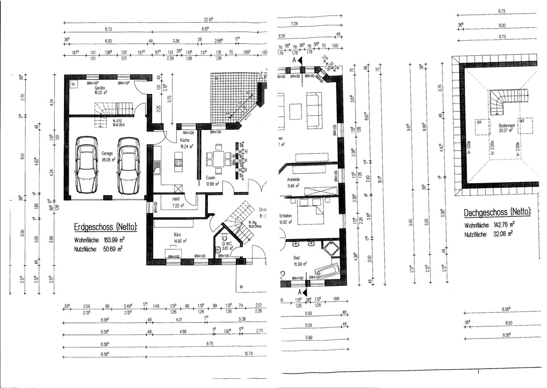
Diese Exklusive Liegenschaft teilt sich wie folgt auf:-Erdgeschoss:
-Eingang/Diele=16,03 m²
-Gäste-WC=3,61 m²
-Büro=14,90 m²
-Bad=15,09 m²
-Schlafen=15,92 m²
-Ankleide=11,46 m²
-Wohnen/Essen/Küche=84,84 m²
-HWR= 7,22 m²
Nutzflächen:
-Garage=36,06 m²
-Geräteraum=16,20 m²
-Garagenbodenraum/Heizungsraum=33,07 m²
-Teilüberdachte Terrasse=ca.16 ,0 m²
Obergeschoss:
-Diele/Luftraum=14,06 m²
-Gast 1=23,23 m²
-Gast 2=26,60 m²
-Schlafen 1=34,76 m²
-Ankleide=9,57 m²
-Bad=13,42 m²
-Schlafen 2=25,03 m²
Extras/Highligts:
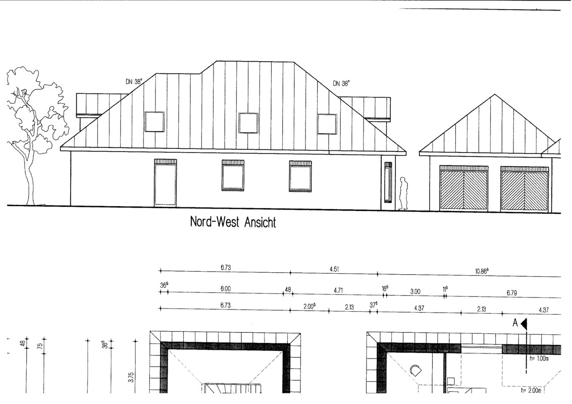
-zentrumsnahe Bestlage in Dörpen
-Doppelgarage verfliest mit elektrischen gedämmten Sektionaltoren und beheizbar
-Garage im Obergeschoss mit breiter Treppenanlage begeh.- und nutzbar
-weiße Kunststofffenster mit Wärmeschutzverglasungen und elektrischen Rolläden
-Haustür mit Designverglasungen
-Hochexklusive Traumbäder
-ebenerdiges Wohnen möglich
-Dachflächenfenster mit elektrischen Außenrolläden
-Kupferdachrinnen
-komplett eingefriedetes Grundstück
-Kameraüberwachung
-Hochexklusive Traumküche mit Granitarbeitsplatten aus 2014
-Design-Innentüren und Ganzglasanlagen
-diverse Einbauschränke
-neue verzinkte und pulverbeschichtete Gartentoranlagen
-aufwendig gestaltete Dachausbauten
-Hochwertige Schiebetüranlagen
Sonstige Angaben:
Für weitere Informationen steht Ihnen Herr Wilfried Thieben gerne telefonisch, per E-Mail oder Telefax zur Verfügung.Einen Besichtigungstermin vereinbaren wir in aller Regel selbstverständlich auch kurzfristig nach Ihren zeitlichen Vorstellungen - auch an den Wochenenden und Feiertagen.
Bitte beachten Sie auch unsere Allgemeinen Geschäftsbedingungen, sowie die Informationen zum gesetzlichen Widerruf. Beides finden Sie auch unter www.remax-kompetenz-center-oberlangen.de.
Widerrufsbelehrung
Widerrufsrecht für Verbraucher
Sie haben das Recht, binnen vierzehn Tagen ohne Angabe von Gründen diesen Vertrag zu widerrufen.
Die Widerrufsfrist beträgt vierzehn Tage ab dem Tag des Vertragsabschlusses.
Um Ihr Widerrufsrecht auszuüben, müssen Sie uns RE/MAX -Kompetenz-Centrum Oberlangen, Wilfried Thieben Immobilien, Zur Marsch 11, 49779 Oberlangen Fax: 05933/92642, E-Mail:wilfried.thieben@remax.de mittels einer eindeutigen Erklärung (z.B. ein mit der Post versandter Brief, Telefax oder E-Mail) über Ihren Entschluss, diesen Vertrag zu widerrufen, informieren.
Sie können dafür das beigefügte Muster-Widerrufsformular verwenden, das jedoch nicht vorgeschrieben ist.
Zur Wahrung der Widerrufsfrist reicht es aus, dass Sie die Mitteilung über die Ausübung des Widerrufsrechts vor Ablauf der Widerrufsfrist absenden.
Folgen des Widerrufs
Wenn Sie diesen Vertrag widerrufen, haben wir Ihnen alle Zahlungen, die wir von Ihnen erhalten haben, einschließlich der Lieferkosten (mit Ausnahme der zusätzlichen Kosten, die sich daraus ergeben, dass Sie eine andere Art der Lieferung als die von uns angebotene, günstigste Standardlieferung gewählt haben), unverzüglich und spätestens binnen vierzehn Tagen ab dem Tag zurückzuzahlen, an dem die Mitteilung über Ihren Widerruf dieses Vertrags bei uns eingegangen ist. Für diese Rückzahlung verwenden wir dasselbe Zahlungsmittel, das Sie bei der ursprünglichen Transaktion eingesetzt haben, es sei denn, mit Ihnen wurde ausdrücklich etwas anderes vereinbart; in keinem Fall werden Ihnen wegen dieser Rückzahlung Entgelte berechnet.
Haben Sie verlangt, dass die Dienstleistungen während der Widerrufsfrist beginnen soll, so haben Sie uns einen angemessenen Betrag zu zahlen, der dem Anteil der bis zu dem Zeitpunkt, zu dem Sie uns von der Ausübung des Widerrufsrechts hinsichtlich dieses Vertrags unterrichten, bereits erbrachten Dienstleistungen im Vergleich zum Gesamtumfang der im Vertrag vorgesehenen Dienstleistung entspricht.
Hinweis zum vorzeitigen Erlöschen des Widerrufsrechts
Ihr Widerrufsrecht erlischt bei einem Vertrag zur Erbringung von Dienstleistungen vorzeitig, wenn wir die Dienstleistung vollständig erbracht haben und mit der Ausführung der Dienstleistung erst begonnen haben, nachdem Sie dazu Ihre ausdrückliche Zustimmung gegeben haben und gleichzeitig Ihre Kenntnis davon bestätigt haben, dass Sie Ihr Widerrufsrecht bei vollständiger Vertragserfüllung durch uns verlieren.
Muster-Widerrufsformular
(Wenn Sie den Vertrag widerrufen wollen, dann füllen Sie bitte dieses Formular aus und senden Sie es zurück.)
An
RE/MAX Kompetenz Centrum Oberlangen
Wilfried Thieben zur Marsch 11-49779 Oberlangen
Fax 05933/92642
E-Mail:wilfried.thieben@remax.de
Hiermit widerrufe(n) ich/wir (*) den von mir/uns (*) abgeschlossenen Vertrag über den Kauf der folgenden Waren (*)/ die Erbringung der folgenden Dienstleistung (*)
•Bestellt am (*)/erhalten am (*)
•Name des/der Verbraucher(s)
•Anschrift des/der Verbraucher(s)
•Unterschrift des/der Verbraucher(s) (nur bei Mitteilung auf Papier)
•Datum
____________________________
Sie wollen mehr erfahren?
Wenn Sie uns eine Nachricht über das Kontaktformular senden, melden wir uns schnellstmöglich bei Ihnen:







































